ROLE

Cleanroom Architect, CDs


FOR

Princeton/Jacobs Engineering


DATE

2012


LOCATION

Princeton University, New Jersey


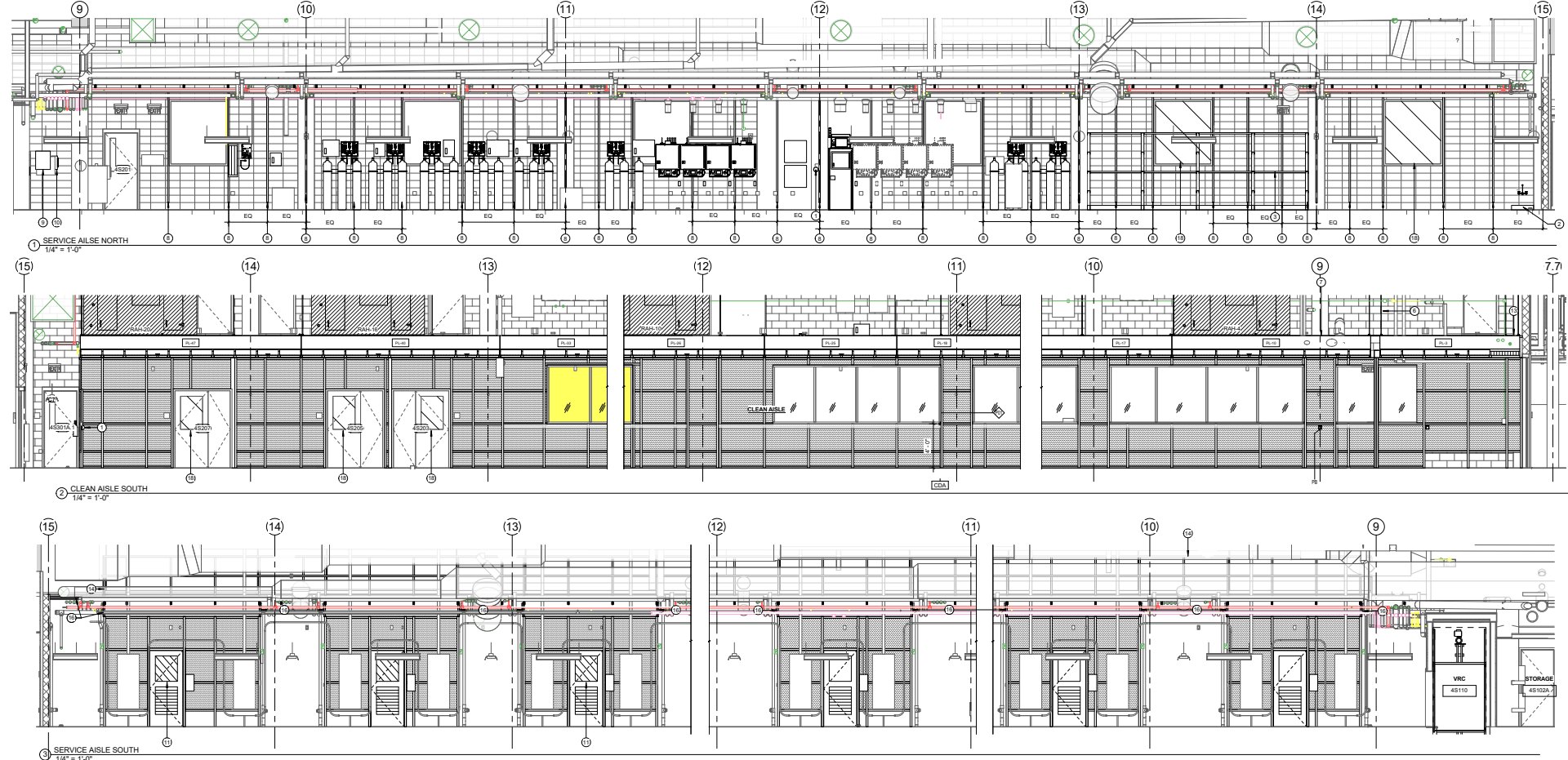
Coordinated with the design architect, Tod Williams Billie Tsien Architects, for the 27,000 sf below-grade research cleanroom spaces at the Princeton Andlinger Center for Energy and the Environment.

Provided schematic design support for the shell and allocation of footprint, moving to more detailed work products in the design development of the cleanroom and tool support systems including chemical storage and dispensing rooms with incidental engineering.

The spaces and systems have entirely stainless steel construction to reduce airborne dust. In the bottom levels, electron microscopes and other equipment are provided with electromagnetic shielding and are situated on bedrock with isolated slabs to minimize vibration.